Shure A910-HCM – Giá treo trần

Liên hệ
Tính năng nổi bật
  • Màu sắc: Màu trắng.
  • Kích thước: 66.45 L x 66.12 W x 7.62cm H
  • Giá treo được gắn thẳng vào tường thạch cao hoặc trần cứng.
  • Có thể sơn lại giá treo phù hợp với màu trần.
  • Phù hợp với kích thước 24 inch và 60 cm của micrô MXA910.

Giá treo trần Shure A910-HCM là gì?

giá treo trần shure a910-hcm là gì
(Giá treo trần Shure A910-HCM)
  • Giá treo trần A910-HCM cho phép micrô MXA910 hoặc MXA920W-S được gắn thẳng trên tường thạch cao hoặc trần cứng, mang lại vẻ ngoài hoàn thiện hơn trong các phòng họp hoặc hội nghị.
  • A910-HCM có thể được cố định vào khung dọc theo các mặt của nó, được treo hoặc gắn vào hệ thống khung kim loại Unistrut phía trên trần nhà.
  • Giá đỡ có thể được cài đặt sẵn trên trần nhà và micrô MXA910 được cài đặt sau. Có thể sơn lại giá treo để phù hợp với màu trần nhà. A910-HCM chứa cả kích thước 24 inch và 60 cm của micrô MXA910.

Một vài thông số kỹ thuật:

Màu sắc Trắng
Kích thước (LxWxH) 26.16 x 26.03 x 3.0″ (66.45 x 66.12 x 7.62cm)
Được thiết kế cho Shure Microflex Advance MXA910
Loại sản phẩm Micro gắn trần

Các tính năng Giá treo trần Shure A910-HCM

tính năng shure a910-hcm
Tính năng Shure A910-HCM
  • Giá treo được gắn thẳng vào tường thạch cao hoặc trần cứng.
  • Giá treo có thể cài đặt sẵn trên trần nhà và micro được lắp sau.
  • Có thể sơn lại giá treo để phù hợp với màu trần.
  • Phù hợp với kích thước 24 inch và 60 cm của micrô MXA910.
  • Mang đến vẻ ngoài hoàn tiện cho các phòng họp.

Cách lắp đặt

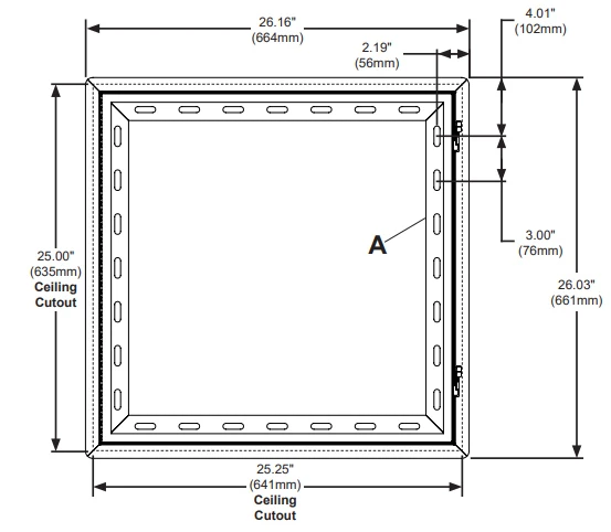
Bước 1. Cắt trần như hình. Lưu ý kích thước vật lý của sản phẩm cũng được hiển thị.

bước 1

Bước 2.1 Đánh dấu các lỗ gắn trên đường trung tâm stud.

bước 2.1

Bước 2.2 Khoan các lỗ gắn vào bề mặt đỡ (yêu cầu độ sâu tối thiểu 2,5″ (64mm)).

bước 2.2

Bước 2.3 Cài đặt bằng vít gỗ được cung cấp.

bước 2.3

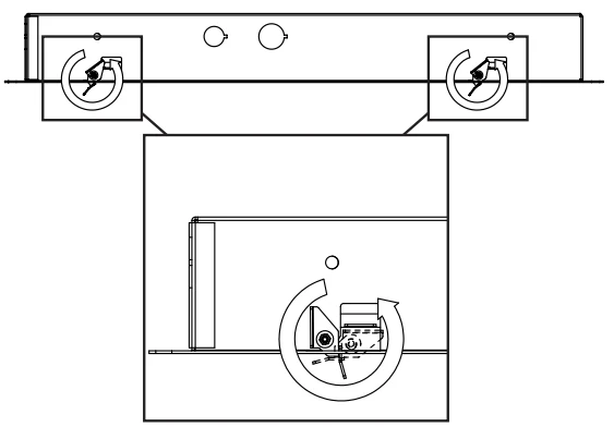
Bước 3.

bước 3.1 bước 3.2 bước 3.3

Bước 4. Lắp xốp dọc theo mép trong của khay để đảm bảo MXA910-60CM / MXA910W-A vừa vặn.

bước 4

Bước 5. 

bước 5

Bước 6.

TÀI LIỆU DATASHEET TẠI ĐÂY

***

Để được tư vấn thêm về thông tin sản phẩm, quý khách vui lòng gọi đến số HOTLINE của công ty 02877798999Công ty TNHH Cung Ứng Ngọc Thiên luôn sẵn sàng giải đáp mọi thắc mắc của quý khách hàng về sản phẩm của công ty.

Thương hiệu

Shure

Kiểu lắp đặt

Treo trần

Kích thước màn hỗ trợ

24 – 60 inch

Đánh giá sản phẩm

Đánh giá

Chưa có đánh giá nào.

Hãy là người đầu tiên nhận xét “Shure A910-HCM – Giá treo trần”